simplified townhome living

Welcome home to Dallas Meadows

Comfortable townhome living where style meets convenience in a community designed for modern life. These thoughtfully crafted townhomes offer 3 bedrooms, 2.5 baths, and open floor plans that make everyday living effortless

Community Brochure
Schedule A Tour

where comfort meets practicality

We Believe It’s More Than Just A Home

Choose from options featuring a one-car garage or a primary suite on the main level, and enjoy elevated details like granite countertops, under-cabinet lighting, and pendant lights over the kitchen island. Exteriors feature a mix of brick, board and batten vinyl siding, and charming architectural details that create timeless curb appeal. With great schools, low county taxes, and a convenient location close to everything you need, Dallas Meadows blends comfort, quality, and value in one exceptional neighborhood.

Schedule A Tour

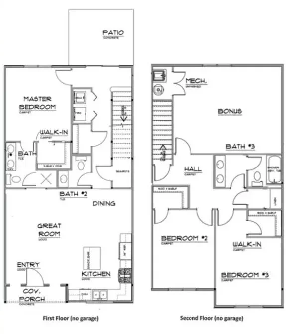
Thoughtful Layouts for Every Season of Life

Dallas Meadows offers two flexible floor plans designed to fit how you live today—and how you’ll grow tomorrow. Choose a layout with a first-floor primary suite and an upstairs bonus space perfect for a playroom, office, or guest area, or opt for the plan with an attached garage and airy open-concept living that keeps everything effortless and connected.

Both layouts feature hardwood floors, granite countertops, and modern finishes—smart, comfortable spaces that work beautifully for first-time buyers, young families, and anyone ready for low-maintenance living with room to breathe.

layout option 1

3 bedroom | 2.5 bathroom

1,580 sqft

Open floor plan

Hardwood floors

Granite countertops

Stainless steel appliances

2nd floor primary suite

One car garage + double front parking

layout option 2

3 bedroom | 2.5 bathroom

1,800 sqft

Open floor plan

Hardwood floors

Granite countertops

Stainless steel appliances

1st floor primary suite

Upstairs finished bonus space

Double front parking

Schedule A Tour

Area Highlights

Modern living wrapped in small-town Tennessee charm.

Tucked into the heart of Soddy-Daisy, Dallas Meadows Townhomes offers the perfect blend of relaxed neighborhood living and quick, easy access to everything Greater Chattanooga has to offer. Whether you're a first-time buyer planting roots, a young family ready for room to grow, or an empty nester craving simplicity without compromise—this community just feels like home.

A Community with Heart

Soddy-Daisy is one of those rare places where neighbors wave, kids still ride bikes down quiet streets, and sunsets over the mountains and lake never get old. It's the kind of small-town atmosphere people dream of—paired with the convenience of having shopping, dining, schools, and outdoor adventure right around the corner.

Everyday Convenience, Minutes Away

No long drives for essentials here—Soddy-Daisy keeps daily life easy: Multiple grocery stores within just a few minutes, local restaurants ranging from comfort food to quick bites, Pharmacies, fitness centers, salons, and everyday services all right nearby

Quick Drive to Chattanooga

The best of the city is closer than you think — Approximately 20 - 25 minutes to Downtown Chattanooga. Dallas Meadows provides easy access to Hamilton Place Mall, boutique shopping in the Southside and Warehouse Row & Minutes to concerts, sports, museums, the aquarium, festivals, and top-rated restaurants.

Top-Rated Local Schools

Families love the convenience and reputation of schools in this district: Allen Elementary School – A warm, community-focused environment for young learners, Loftis Middle School – Known for strong academics and well-rounded student programs, Soddy Daisy High School – A school with rich tradition, spirited athletics, and committed educators

Eat, Sip & Enjoy Local Flavor

Soddy-Daisy’s food scene is full of hometown favorites like Home Folks, Steve’s Landing, New York Pizza Department & Rafael’s —BBQ spots, pizza places, breakfast cafés, and locally owned gems that know your name after your second visit. Craving something different? Chattanooga’s award-winning food scene is just down the road.

Outdoor Adventure at Your Doorstep

If you love fresh air, this is your playground — Chickamauga Lake is just minutes away for boating, fishing, kayaking & lakeside sunsets. You’ll find quick access to parks and greenways for walking, running, and biking. Dallas Meadows is close to popular hiking trails, waterfalls, and scenic overlooks. Living here is the perfect balance of mountain views, lake life, and wide-open Tennessee skies

Ready to see Dallas Meadows for yourself?

Schedule a visit or reach out with questions—we’d love to show you around and help you find your place here.